• 深夜网站在线观看,深夜福利影院,深夜福利网站APP,深夜福利影院在线观看

            全國免費谘詢熱線:17317317121(微信同號)深夜网站在线观看深夜福利影院器,安全又耐用

    V型吊式深夜福利影院器產品

    發布時間:2021-03-12 15:14

    V型<a id=深夜福利影院器產品" src="/uploads/210312/1-21031215152X00.jpg" style="transition: all 0.3s ease 0s; text-size-adjust: none; margin: 0px; padding: 0px; border: none; vertical-align: middle; max-width: 100%; -webkit-tap-highlight-color: rgba(0, 0, 0, 0); height: 400px; width: 600px;" />

      V型吊式深夜福利影院器產品介紹:

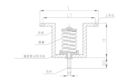
      1、懸吊框上下連接麵采用NR減振橡膠設計,能更有效隔絕因振動引起的低頻噪音。

      2、懸吊框及彈簧外觀采取噴塑防鏽處理,以延長使用壽命。

      3、彈簧采用低頻率值設計,防振效果好。

      V型吊式深夜福利影院器產品數據表:

    V型吊式深夜福利影院器結構圖
    V型吊式深夜福利影院器參數表1

    產品介紹

    橡膠深夜福利影院器之所以如此被廣泛的運用,是因為它有效的利用了橡膠的如下諸多特性:

    (1)橡膠具有高彈性和黏彈性;

    (2)與鋼鐵材質相比,橡膠的彈性變形很大,彈性模量很小;

    (3)橡膠的衝擊剛度大於動剛度,動剛度又大於靜剛度,有利於減少衝擊變形和動態變形;

    (4)應力-應變曲線為橢圓形滯後線,其麵積等於各個震動周期轉變為熱量的振能(阻尼),可通過配方設計調整之;

    (5)橡膠為不可壓縮性材料(泊鬆比為0.5);

    (6)橡膠形狀可以自由選擇,硬度可以通過配方設計加以調整,可以滿足不同方向的剛度和強度的要求。

    突出優勢

    載荷範圍

    載荷範圍:245N-35040N;位移範圍有二種:0-75mm、0-150mm;

    結構

    結構采用外挑管,消除音隙非常方便,且有螺紋防鬆設置;

    連接管

    長短連接管采用左右螺紋,安裝距離詷量為40mm,且可現場調整,並設有螺紋防鬆設置;

    間隙小

    兩端接口采用鉸接,有效地消除了雙向使用時的間隙;

    載荷刻度

    上刻度板上增設了載荷指示刻度,使調節載荷、工作載荷一目了然。

    產品作用

    為了減少前麵提到的路麵對車輛的振動和衝擊,需要彈簧把這些吸收振動和衝擊的能量,彈簧在懸架中就是一個儲能元件,但是暫時儲存起來還不行,還要把這些對車輛乘坐舒適性和操縱穩定性不利的能量消耗掉,這是就輪到減振器登場了,液壓式減振器的工作原理是當車架與車橋作往複相對運動,而活塞在缸筒內往複運動時,減振器殼體內的油液便反複地從一個內腔通過一些窄小的孔隙流入另一內腔,此時,孔壁與油液間的摩擦及液體分子內摩擦便形成對振動的阻尼力,使車身和車架的振動能量轉化為熱能,而被油液和減振器殼體所吸收,然後散到大氣中。簡單的說就是,將動能轉化為熱能。如果減振器在試驗台連續運轉幾分鍾,減振器貯油缸外壁會變得非常熱,甚至燙手。

    與V型吊式深夜福利影院器產品相關的文章

    奔馳深夜福利影院器是不是要更換?

    奔馳深夜福利影院器是不是要更換?空調的風機盤管要記得裝深夜福利影院器哦!?在辦公室裏,在臥室裏,您能否有過被空調的噪聲震動折磨的難以忍受的閱曆呢?安靜的空間裏,微小的聲音有可能被放…

    吊式彈簧深夜福利影院器變形保修嗎?

    吊式彈簧深夜福利影院器變形保修嗎?1、吊式彈簧深夜福利影院器連接的電源電壓要穩定,因為如果電流過大或是過小都會讓長期在此條件下使用的吊式彈簧深夜福利影院器出現損壞的情況。2、吊式彈簧深夜福利影院器放…

    海馬s5深夜福利影院器怎麽調軟?

    海馬s5深夜福利影院器怎麽調軟?目前,世界上已經納入各種標準的有近100種,並且隨著科技的進步和工農業的發展,新的牌號還在不斷增加。對於一種已知牌號的,根據其化學成分可推算其鉻當…

    如非注明文章皆由專業的深夜福利影院器廠家“上海深夜网站在线观看”原創,轉載請注明出處! 文章地址:http://www.hxgfjwz.com/thjzq/726.html

    相關產品

    相關新聞推薦

    服務熱線:17317317121

    公司地址:上海寶山區園康路255號1號樓A區三層

    上海深夜网站在线观看深夜福利影院器有限公司是一家專業生產深夜福利影院器係列產品的廠家,深夜网站在线观看為您提供金屬軟管圖片、參數、價格、工作原理、基本結構、產品分類、產品特點、安裝方法、主要問題、深夜福利影院在线观看領域等相關資料,如果您有任何問題歡迎您撥打我公司的服務熱線!

    滬ICP備32263317號-18Copyright © 上海深夜网站在线观看深夜福利影院器有限公司 www.hxgfjwz.com
    網站地圖